Wenn aus Ideen funktionierende Technik wird!

Zimmermanns Engineering:

Engineering für Industrie-, Energie- und Umweltanlagen. Seit über 25 Jahren stehen wir für zuverlässiges Engineering im industriellen Anlagenbau. Unser Unternehmen mit Sitz in Xanten unterstützt Anlagenbauer, Industrieunternehmen und Ingenieurbüros bei der Planung und Konstruktion komplexer technischer Anlagen – von der ersten Konzeptidee bis zur fertigen Werkstattzeichnung. Unsere Schwerpunkte liegen in der Planung und Konstruktion von Stahlbau-, Anlagen- und Rohrleitungssystemen für industrielle Anwendungen. Dabei verbinden wir fundiertes technisches Know-how mit langjähriger Erfahrung aus internationalen Projekten.

Planung. Konstruktion. Engineering.

Wir unterstützen unsere Kunden in allen Phasen der technischen Planung:

  • Konzept- und Entwurfsplanung
  • Basic Engineering
  • Detail Engineering
  • 3D-Konstruktion
  • Werkstatt- und Montagezeichnungen
  • statische Berechnungen

Zum Einsatz kommen moderne CAD-Systeme wie z.B. AutoCAD Mechanical und ProSteel.

Erfahrung aus internationalen Industrieprojekten:

Seit unserer Gründung im Jahr 1996 haben wir zahlreiche Projekte für Industrieanlagen im In- und Ausland erfolgreich umgesetzt. Unsere Arbeiten umfassen unter anderem Projekte in:

  • Belgien
  • Deutschland
  • Frankreich
  • Indien
  • Indonesien
  • Italien
  • Luxemburg
  • Spanien
  • Ukraine
  • USA
  • Venezuela

Dabei haben wir Engineering-Leistungen für eine Vielzahl technischer Anlagen erbracht.

Unsere Kompetenzfelder:

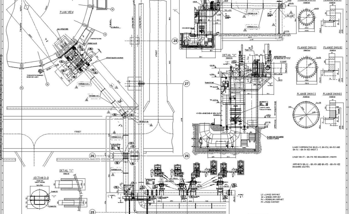
Industrieanlagen, Stahl- und Anlagenbau

Planung und Konstruktion komplexer Anlagenstrukturen sowie Stahlbaukomponenten für Produktions- und Prozessanlagen.

Rohrleitungs- und Gasinfrastruktur

Engineering für großdimensionierte Rohrleitungen und industrielle Gas- und Prozesssysteme, einschließlich Tragstrukturen und Einbindung in bestehende Anlagen.

Energie- und Umwelttechnik

Planung von Komponenten zur Energieeffizienz und Emissionsminderung wie Wärmetauscher, Entstaubungssysteme und Abgasführungen.

Fördertechnik und Recycling

Konstruktion von Förderanlagen, Materialhandling-Systemen und Anlagen für Rohstofftransport, Aufbereitung und Recycling.

Flexible Engineering-Kapazitäten

Zimmermanns Engineering arbeitet eng vernetzt mit freiberuflichen Ingenieuren und Statikbüros zusammen. Dadurch können wir Projekte flexibel und effizient bearbeiten – vom einzelnen Konstruktionsauftrag bis zur umfangreichen Anlagenplanung.

 

Unsere Kunden profitieren von:

  • hoher technischer Kompetenz
  • schneller Projektumsetzung
  • flexibler Zusammenarbeit
  • jahrzehntelanger Industrieerfahrung
Druckversion | Sitemap
ZE Zimmermanns Engineering
Kalkarer Straße 135
D-46509 Xanten

Anrufen

E-Mail

Anfahrt